室内空间是每个业主驻留最久的地方,在户型的打造上,华发四季雅筑充分考虑到购房者的不同需求,让每个户型都保证了空间感和尺度感,兼顾了舒适与实用的平衡!

建面约99㎡户型,三开间朝南,南北通透,双阳台设计,餐客厅一体,U型厨房还带明窗,采光观景拉满;主卧套间设计,小户型也配备双卫,让生活更加私密高效。
建面约120㎡户型,大横厅设计,进一步放大厅堂的空间感,主卧套房设计,私密性十足;卫生间预留了较多收纳空间,此外主卫还配备电热毛巾架、恒温花洒等。

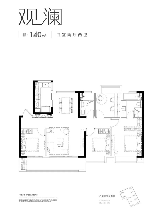
建面约140㎡户型,同样横厅设计,配上全景落地窗,居住舒适度更高,主卧套房设计,主卫配备了浴缸,真正做到了改善一步到位。

在升级包配置上,华发四季雅筑也可圈可点,三大件配备大金中央空调、威能地暖以及百朗新风;厨房配置了弗兰卡龙头水槽,西门子油烟机、灶具、嵌入式洗碗机等。卫生间采用科勒或高仪等国内外一线品牌,抽拉式水龙头,主卫配备恒温花洒、电热毛巾架等都是交付标准,卫生间还做了墙排马桶以及内嵌壁龛,细节处均有所考虑,性价比高。
如果您对华发四季雅筑项目感兴趣,可以拨打售楼处客服电话咨询:400-716-9656。
您将在第一时间获取南京的楼盘打折、降价、开盘等楼盘动态信息
2023-11-13
2023-11-13
2023-10-23
2023-10-23
2023-10-23
2023-09-12
2023-09-12
2023-09-12
2023-09-12
2023-08-04