海信慧园打造建面约89、107㎡创新型户型!户型样板间已开放。户型都相当不错。特别是其建面约89㎡的A户型,创新性地做成“1.5卫”。

89㎡有三个户型,两个是三室两厅1卫的,一个是三室两厅1.5卫的,对标刚需客户;而107㎡是三室两厅两卫,主打首改。虽然是起步户型,但是在居住舒适度上却是一点也不含糊。双阳台、主卧大飘窗的设计都在强调“舒居”这个概念。海信慧园的得房率非常高,为80%左右!如果加上阳台、飘窗赠送面积,得房率在85%以上。

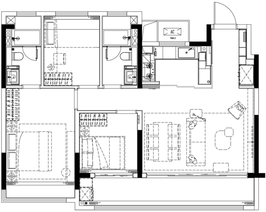
建面约107㎡户型,则在尺度上更进一步。充分满足首改客户的居住需求:三室两厅两卫;动静分区,户型方正;宽厅设计,客厅开间约5.4米。相比起步户型,这款户型的阳台更是尺度惊人!阳台进深约1.5米,宽度达到了约8.3米,堪称是“跑道式”巨幕阳台。对如今的买房人而言,阳台绝非单一的晾晒区域,更是延伸视野、安放养花喂猫等一系列兴趣爱好的复合空间,而107㎡的阳台完美满足了多重需求!
想要了解更多楼盘详情请拨打售楼处电话咨询,售楼处电话:400-716-9656。
户型: 3居室
地址:东至现状,南至现状,西至迎江路,北至康安路
宜居生态
您将在第一时间获取南京的楼盘打折、降价、开盘等楼盘动态信息
2025-07-09
2025-07-09
2025-07-09
2025-07-09
2023-11-27
2023-11-27
2023-11-02
2023-11-02
2023-10-20
2023-10-20