东原印未来是雨花滨江首个住宅项目,滨江襟河,对望鱼嘴,距离河西仅一步之遥。但相比河西动辄5万起的新房,6万起的二手房,这里的房价只有对岸的一半,价值潜力可见一斑。2站地铁到达河西南,被限价在3万/㎡以内的雨花滨江值得关注。
东原印未来打造17栋25-27F高层住宅(配建租赁住房约8602㎡)、2栋低层配套商业、2栋配套用房等;地下主要建设1层地下室等配套设施。

作为板块第一个楼盘,印未来将拒绝平庸产品,直接将板块品质定义为一个新的高度。在外立面设计、景观资源、户型设计等多方面下足功夫,力求做成区域标杆。
项目自带约5.6万方的度假式景观,六境礼序归家,多种体验感受的林下空间。还带有全龄式互动体验园区、童梦乐园、康养乐园、复合运动场等多个社交场所。

东原印未来在售建面约78、89、107㎡房源,起步总价约190万起,首付约57万起。注意,部分楼栋还能看江。
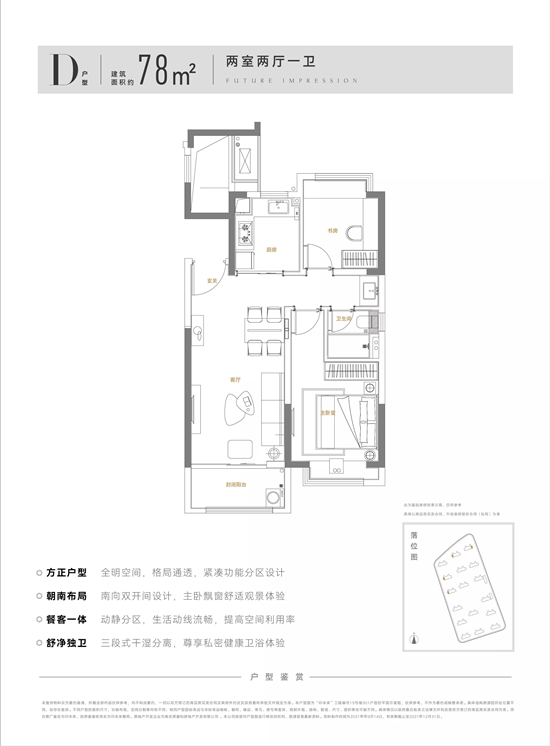
建面约78㎡两室两厅一卫户型,布局紧凑,南向主卧带飘窗增加使用面积,卫生间三段式干湿分离,总价约190万起就能拿下,首付约57万。

建面约89㎡三室两厅一卫,三开间朝南,方正通透,双开间阳台,南向两个卧室,卫生间干湿分离。250万左右就能拿下,放眼周边可以说是没有竞品。

建面约107㎡三室两厅两卫,三开间朝南、双开间阳台,主卧套房设计,自带卫浴,尺度更从容。总价不到300万就能改善。

东原印未来的升级装修包约1500元/㎡,三大件是日立空调、威能地暖、布朗新风,电视机背景墙、洗碗机、净水器、家政柜玄关柜衣柜、儿童房榻榻米衣柜、全屋墙布等均是交付标准,性价比很高。
项目采用东原仁知物业,是具有国家一级资质的物业,同时位列2021年中国物业服务百强企业TOP23。该物业最大的服务特色是焕新行动,即每隔10年会对社区公共设施进行更换等升级改造,使社区家园实现“逆龄生长”。
上一篇:南京中骏东原璟阅值得买吗?
您将在第一时间获取南京的楼盘打折、降价、开盘等楼盘动态信息