东原印未来择址雨花滨江,占位宁和城际产业发展轴,把握住城市产业发展未来。
东原印未来以公建化立面,呈现国际现代化风格。大面积应用一体板以及高窗地比的表达,增加空间宽敞度,收纳更多进光面积;经典三段式风格,采用高配建筑立面,加以质感材料的优雅搭配,打造滨江宜居样本。

约5.6万方社区景观面积,内外皆呈公园视野;“六境归家礼序”、“中心水景邻里会客厅”、“全龄休闲设施”、“十二重智慧保障”等配置,打造更安全的有氧森活住区。

产品设计上,建面约78-107㎡可成长户型的配置,非常照顾首次置业刚需。
据悉,项目预计首开起步户型,为建面约78㎡,两房两厅一卫布局,格局通透,动线合理。

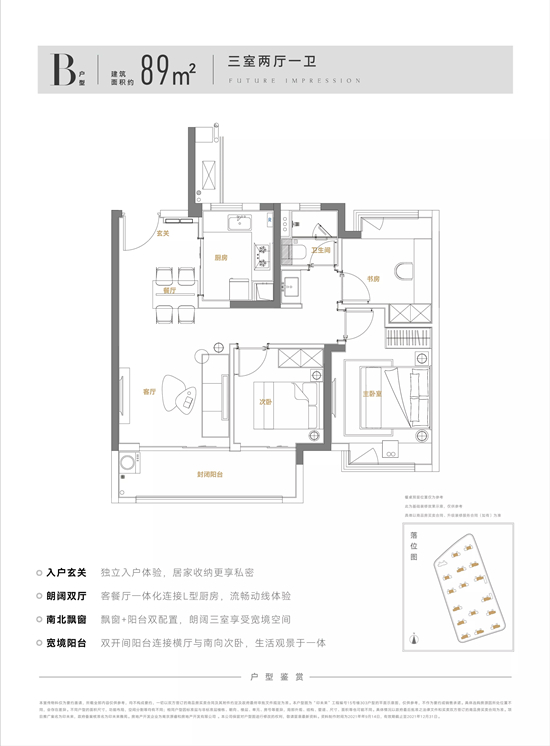
建面约89㎡,三房两厅一卫,经典三房布局。南向通长封闭阳台为一大亮点,即便是市面上90多㎡户型也不多见。

整体方正,三开间朝南,开阔面宽,高空间利用率。L型厨房,餐客厅一体化,生活动线合理;分隔式卫生间,可容纳2-3人同时使用;景致主卧,自带南向飘窗,生活观景同步。
建面约107㎡户型,做到了三房两厅两卫设计,功能性强,契合三口之家。约9.8米三开间朝南布局,全屋采光充足。入户玄关设计,满足收纳的同时,仪式感凸显。

起居室LDK一体设计,在厨房大展身手的同时,也可及时照顾在客厅玩耍的小孩。南向双开间阳台,连通次卧与客厅,敞阔空间。主卧套房设计,带独立卫浴、约270°瞰景飘窗,尊享感立显。
下一篇:10月南京新房价格环比持平
您将在第一时间获取南京的楼盘打折、降价、开盘等楼盘动态信息