铭著风华由新城开发,共规划11栋住宅17-18F、2栋商业。

项目整体采用了简约现代的建筑风格,建筑风格简约现代,朝阳面采用了大面积玻璃窗设计,搭配硬朗线条,低调大气;南向约0.42窗墙比,增加采光面的同时又能够引景入室,随时能够欣赏四时美景。
并且,铭著风华为17—18F小高层设计,得房率更是达到了80%,这在市面上也是少见的高得房率楼盘,意味着同样的建筑面积下,铭著风华的业主能够得到更多的实际使用面积,性价比很高。
而在楼栋排布上,社区前后楼栋间距达到40-63米,需要注意的是,铭著风华楼栋最高只有约50米,与楼间距基本达到1:1,即便是1楼也能保证采光。

内部景观上,项目营造出“六大森林秘境”,并通过景观大道将各个景观一一串联,形成纵横双中轴的景观设计。此外,考虑到各个年龄段的社交、运动需求,铭著风华打造有多重森系景观,儿童休闲场、运动健身场、轻氧生活场三大主题组团交融,形成多维度全龄化森居功能社区,整体颜值、后期居住舒适度都很高。
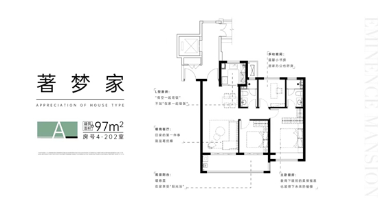
铭著风华打造建面约97—136㎡通透户型,涵盖多种置业需求,十分人性化。尤其是建面约97㎡三房户型,这也是目前汇通路板块少有的面向首次置业需求的面积段。
具体来看,建面约97㎡户型十分方正,基本无浪费空间,整体利用率很高;南北通透,且是朝南双联阳台设计,采光与通风都更胜一筹;U型厨房直面客餐厅,减少不必要的活动动线,使得休息区更多一分安静;主卧预留衣帽空间,且私享独立卫生间,保证私密性与舒适度。

建筑面积约115㎡户型为三房两厅两卫设计,入户门直面阔绰横厅,同时搭配270°大阳台,尺度感拉满。

建筑面积约125㎡户型为四房两厅两卫设计,多开间朝南,南北通透;全明户型,各个功能区都有独立采光源,基本无采光死角,后期的居住舒适度更有保障。

建面约136㎡户型为四房两厅两卫设计,阔绰横厅搭配朝南约8米的双联阳台设计,观景、采光都不耽误;餐厅自带独立阳台,室内更加通透;值得一提的是,这也是片区内少有的三阳台设计房源;四房的设计增加了户型的功能性,多胎家庭、或者是带老人居住都能够轻松满足。

室内装修也非常有亮点。为了给买房人营造更为舒适的居住空间,铭著风华配备有智能控制系统、环境控制系统、家庭安全系统、智能语音系统四大智慧系统;同时搭配日立中央空调、爱迪生新风系统以及威能地暖系统,为优质生活保驾护航。
其他精装品牌方面,据悉选用博世、杜拉维特、高仪、松下等知名品牌。(或同等档次品牌,具体装修标准以开发商合同为准)
户型: 3居室 / 4居室
地址:麒麟片区纬七路以南、经二路以西
地铁沿线
您将在第一时间获取南京的楼盘打折、降价、开盘等楼盘动态信息