华发四季雅筑共打造10栋27-33F高层住宅,均为两梯四户设计。

从效果图中可以看出,项目全户采用封闭阳台落地窗设计,南向约0.42窗墙比,外立面为铝板基座+线框立面+大面积中空Low-E玻璃,起到降噪、隔热的功能。
除了外立面产品细节外,华发四季雅筑在园林景观设计上也是满满的诚意。
项目规划南北双园,北区打造约10000㎡中庭花园东南亚风情园林,南区打造对称式景观中轴,精选朴树、银杏、乌桕、樱花、海棠、紫薇、桂花、腊梅、红梅等全季节景观。

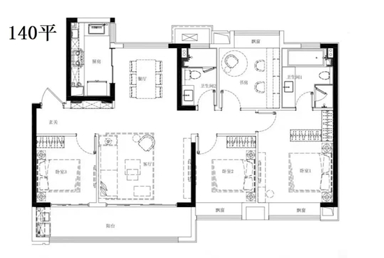
项目公开了建面约99m²、120m²、140m²户型样板间,升级装修标准也随之出炉:三大件齐全(大金空调、威能地暖、百朗新风),还有厨房弗兰卡龙头水槽+西门子油烟机、灶具、嵌入式洗碗机,卫生间科勒或高仪五金等,非常值得一看。
建筑面积约99㎡三房两卫,布局上三开间朝南,独立入户玄关,南向双阳台,主卧有大飘窗,户型南北通透,全明U型厨房,这在同样大小的户型中还是非常少见的。

建筑面积约120㎡3+1房两卫,客厅横厅设计,大面宽短进深,南北通透客餐厅,餐厅自带大窗户,还有宽阔主卧套房,L 型衣帽间,增加私密性。此外,南北三卧室“全飘窗”设计,实际使用面积会更大。

建筑面积约140㎡四房两卫,超大南向双阳台,餐厅带窗。主卧卫生间淋浴间和浴缸同时拥有,最大化利用室内面积。户型能够满足三代同堂的需求,是改善家庭首选。

您将在第一时间获取南京的楼盘打折、降价、开盘等楼盘动态信息