华发四季雅筑项目共规划10栋27-33F高层住宅,均为两梯四户设计。

外立面为“铝板基座+线框立面+大面积中空Low-E玻璃”设计,还是很具有现代感的。据悉,项目采用封闭阳台落地窗设计,南向约0.42窗墙比。
项目在景观打造方面也是值得一提的,为了呼应滨江风光带,项目打造了约1万方中庭花园东南亚风情园林。南区打造对称式景观中轴,引入朴树、银杏、乌桕、樱花、海棠、紫薇、桂花、腊梅、红梅等全季节景观。

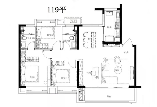
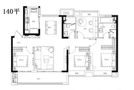
项目主力户型建面约99m²、120m²、140m²三种,三房起步,适合改善人群。建面约99m²户型,价格在370万左右,价格相对来说低一些,降低了上车门槛,对于预算不是很多的朋友来说,还是比较友好的。
建面约99㎡的小户型也做了两个卫生间,户型方正,三开间朝南南北通透户型,阳台做的是双阳台设计,采光也会更好。餐客厅一体设计,U型厨房还带明窗,这户型还真挑不出毛病。

建面约120㎡做了目前比较流行的大横厅设计,整体空间感很不错。加之客厅、餐厅、阳台南北通透,整体的通风采光也很好。细节上,餐厅的窗户、全系飘窗设计还是比较加分的。主卧做的套房设计,私密性也照顾到了。整体看下来,能够满足品质改善需求。

建面约140㎡做了四房设计,而且客房和主卧空间做了分隔,很适合家里有老人的家庭居住,不同生活习惯却又相互不打扰。建面约140㎡户型,面积也足够大,三代同堂完全够用。

从户型设计上看,南向双阳台和北向餐厅窗户形成对流,通风效果不错。主卧卫生间淋浴间和浴缸同时拥有,最大化的利用了室内面积,将改善做到了一步到位。
项目整体装修标准还是比较高的,精装三大件有大金空调、威能地暖以及百朗新风。厨房配置了弗兰卡龙头水槽+西门子油烟机、灶具、嵌入式洗碗机。
卫生间采用科勒或高仪等品牌,恒温花洒、抽拉式水龙头、电热毛巾架等都是交付标准,比较特别的是卫生间做了墙排马桶以及内嵌壁龛,非常实用。
您将在第一时间获取南京的楼盘打折、降价、开盘等楼盘动态信息