浦口城南中心纯新盘海信慧园公开示范区,并释放出了以下重点信息。
1、海信慧园打造5栋17层小高层住宅,是区域内首个拥有双会所的小区。其中1、2号楼的1楼是架空层,日后将拟建成小区会所。

2、海信慧园的外立面将是颜值颇高的玻璃幕墙,主体外墙以米白色真石漆保温一体板为主。
3、景观规划上,园区景观面积约1.5万平米,总共分为中心水系、阳光草坪、儿童活动、架空层会所等9大组团景观,打造了一条约450米长的环形漫步道,串联各个景观节点。

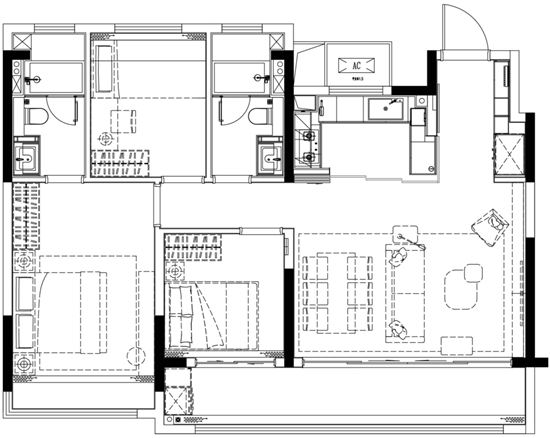
4、89、107㎡精装样板间曝光,建面约89㎡的A户型,首次亮出了创新设计“1.5卫”。
1.5卫就是除一个包括淋浴、马桶、洗手池等完整卫生间的基础上,又另外新增一个马桶的半个卫生间,对于三口之家来说真心实用,该设计在整个南京楼市也属凤毛麟角。

89㎡的卫生间里还配置了暖气片,精装交付包含空调、地暖、新风系统,电视背景墙、玄关柜等,性价比很高。
约107㎡户型,则在尺度上跟进一步。充分满足首改客户的居住需求:三室两厅两卫;动静分区,户型方正;宽厅设计,客厅开间约5.4米.....

5、得房率非常高,80%左右
据现场置业顾问表示,整体得房率在80%左右,如果算上阳台等赠送面积,可以达到85%。
如果您对海信慧园感兴趣,欢迎拨打售楼电话:400-716-9656
户型: 3居室
地址:东至现状,南至现状,西至迎江路,北至康安路
宜居生态
您将在第一时间获取南京的楼盘打折、降价、开盘等楼盘动态信息